SANDYBROOK NEIGHBORHOOD ASSOCIATION

INFORMATION REGARDING THE SINGLE-FAMILY DEVELOPMENT SOUTH OF SANDYBROOK - WELDON MEADOWS / "TEE ONE UP"


Plat change as of 05/02/06 for Phase 3 - Updated 08/10/06

They have done a redesign of the 3rd phase of Weldon Meadows from single family homes to duplexes. Instead of 28 lots of A-5 single family homes they want to rezone the property to B zoning to build 54 duplexes on 27 lots. This is the 5 acres that fronts John T White between the KB model homes and the Emory place homes.

The plat was heard by the Plan Commission on 5/24/06 and was continued until June 28, 06.
On June 28 the Plan Commission denied the plat.
The zoning case was heard by the Zoning Commission on June 14, 06 and was continued until July 12, 06.
On July 12 the Zoning Commision denied the zoning change.
The City Council heard the zoning case on Aug 8, 2006 and denied the change. For now this means the duplexes will not be built.

Click here to see a image of the proposed preliminary plat plan in a new window.

It was agreed at the May meeting to oppose this change.

Remember this is the preliminary plat and not the final plat. Close the new window to return to this page.


Plat change as of 08/02/05 for Phase 3

The Planning Commission approved the preliminary plat case on 08/24/05.

Click here to see a pdf of the proposed preliminary plat plan in a new window.

Click here to see a aerial pdf of the proposed preliminary plat plan in a new window.

Remember this is the preliminary plat and not the final plat. Close the new window to return to this page. This pdf is copyrighted and owned by Weldon Ward. This image is used with permission to show the current development plans for the property. You must contact them if you wish to use this image.


Zoning change on 07/13/05 for Phase 3

There has been a 3rd phase added to the Weldon Meadows development to our south. The 6 acres of commercial zoned land is going to be changed to A-5 to build 28 homes. The road will be a “U” shaped road in and out of the 6 acres to John T White and will not connect to any other road in the phase 1 development. The city council approved the zoning change on 08/09/05.

The Zoning Commisison approved the zoning change on July 13, 2005. Case number ZC-05-116


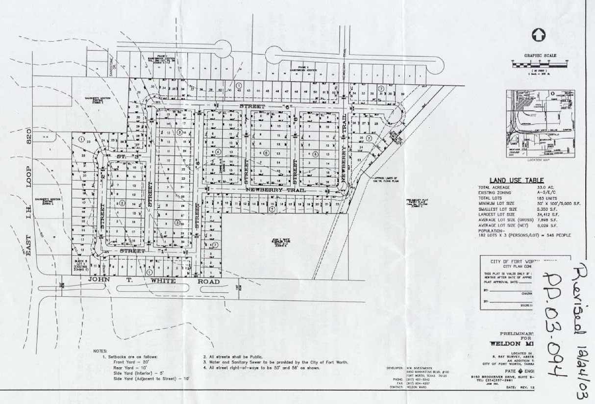
Plat change as of 01/12/04

The following information is the new plans for the area south of Newberry Trail and the "TEE ONE UP" area. They have taken some of the land to the east of the Tee One Up and added it to Weldon Meadows and removed it from Emory Place. This new plan will be a total of 33 acres with 183 lots. The original plans for the area had 166 lots. This new plan adds 17 lots to the area. The smallest lot size is 5350 S.F. and the largest is 34,412 S.F..

There is a Planning Commission hearing for this plat on Wed January 28, 2004 at 1:30pm. The Planning Commission approved the preliminary plat.

Click here to see a image of the proposed preliminary plat plan in a new window.

Remember this is the preliminary and not the final plat. Close the new window to return to this page. This image is copyrighted and owned by W.W. Investments. This image is used with permission to show the current development plans for the property. You must contact them if you wish to use this image.


The current zoning case ZC-03-217 involves rezoning the 18.05 acres to the west of Emory Place, north of John T White Rd. and south of the Sandybrook Neighborhood. Currently this property is the Tee One Up Golf. W.W Investments are asking for the zoning to be changed from E Neighborhood Commercial to A-5 One Family.

This case was approved by the Zoning Commission on Sep. 10, 2003.

The City Council will hear this case on Oct. 14 at 7pm. The City Council decided to approve this case. This will allow the project to move forward.

The single-family development (Weldon Meadows) (currently Tee One Up) will be a total of 18.05 acres. This development will cover the area that is the Tee One Up Golf. The owners plan on developing 106 lots. At this time the plans are for one and two story homes to be built. We currently have plans to ask the home builder to only put one story homes along our property line.

Everyone we have talked to agrees that this will be the best development of this area other than not being developed at all. Most people agree that we do not need any more commercial built on this property.

At the special zoning meeting on September 18, 2003 it was voted to support this zoning case by all present.

email You can e-mail me questions, comments, about this project at sandybrook@charter.net

     Zoning and Development Projects

This site was designed for 800x600 screens and using Cutehtml from GlobalScape, Inc.

Last updated 08/10/06